Ngôi nhà đẹp 2 tầng là một không gian sống rộng rãi với thiết kế không gian mở hiện đại tạo nên một bầu không khí thoáng mát và gần gũi với thiên nhiên cho toàn bộ ngôi nhà. Khu vực thông tầng nơi cây xanh và giếng trời được phối hợp để mang đến bầu không khí dễ chịu cho ngôi nhà 2 tầng.

Tôi đến gặp chủ nhà vào một chiều mưa. Anh giới thiệu với tôi về ngôi nhà anh đang ở, một ngôi nhà tuy hơi cũ nhưng rộng rãi, 3 tầng, có sân trước sân sau và đầy đủ công năng cho cả gia đình 3 thế hệ sinh sống. Tôi đã nghĩ anh chỉ có ý muốn cải tạo lại ngôi nhà và không gian sống. Nhưng tôi đã nhầm, nhiệm vụ thiết kế được chủ nhà đưa ra rất đơn giản và xúc tích mà tôi chưa gặp bao giờ: “Hãy cho anh một bản thiết kế có cảm xúc để anh đủ can cảm đập ngôi nhà này”. Công việc của chúng tôi được bắt đầu từ câu nói trìu tượng này.

Khuôn viên khu đất rất đẹp cho việc thiết kế nhà ở gia đình, mặt tiền 6,7m, chiều dài 17,2m, có 3 mặt thoáng. Để tổ chức công năng có ánh sáng và gió cho mọi không gian bên trong là không khó nhưng để tràn ngập thiên nhiên trong lòng ngôi nhà, giảm thiểu tối đa năng lượng nhân tạo là điều chúng tôi muốn làm ở công trình này.

thiet ke nha pho dep, nha dep 3 tang, ihouse
Mẫu thiết kế nhà đẹp 3 tầng được các kiến trúc sư tính toán tỷ mỷ, chi tiết, cân nhắc từng vật liệu sử dụng cho việc kiến tạo nên một không gian đầy cảm xúc.

Tôi đến gặp chủ nhà vào một chiều mưa. Anh giới thiệu với tôi về ngôi nhà anh đang ở, một ngôi nhà tuy hơi cũ nhưng rộng rãi, 3 tầng, có sân trước sân sau và đầy đủ công năng cho cả gia đình 3 thế hệ sinh sống. Tôi đã nghĩ anh chỉ có ý muốn cải tạo lại ngôi nhà và không gian sống. Nhưng tôi đã nhầm, nhiệm vụ thiết kế được chủ nhà đưa ra rất đơn giản và xúc tích mà tôi chưa gặp bao giờ: “Hãy cho anh một bản thiết kế có cảm xúc để anh đủ can cảm đập ngôi nhà này”. Công việc của chúng tôi được bắt đầu từ câu nói trìu tượng này.

Khuôn viên khu đất rất đẹp cho việc thiết kế nhà ở gia đình, mặt tiền 6,7m, chiều dài 17,2m, có 3 mặt thoáng. Để tổ chức công năng có ánh sáng và gió cho mọi không gian bên trong là không khó nhưng để tràn ngập thiên nhiên trong lòng ngôi nhà, giảm thiểu tối đa năng lượng nhân tạo là điều chúng tôi muốn làm ở công trình này.

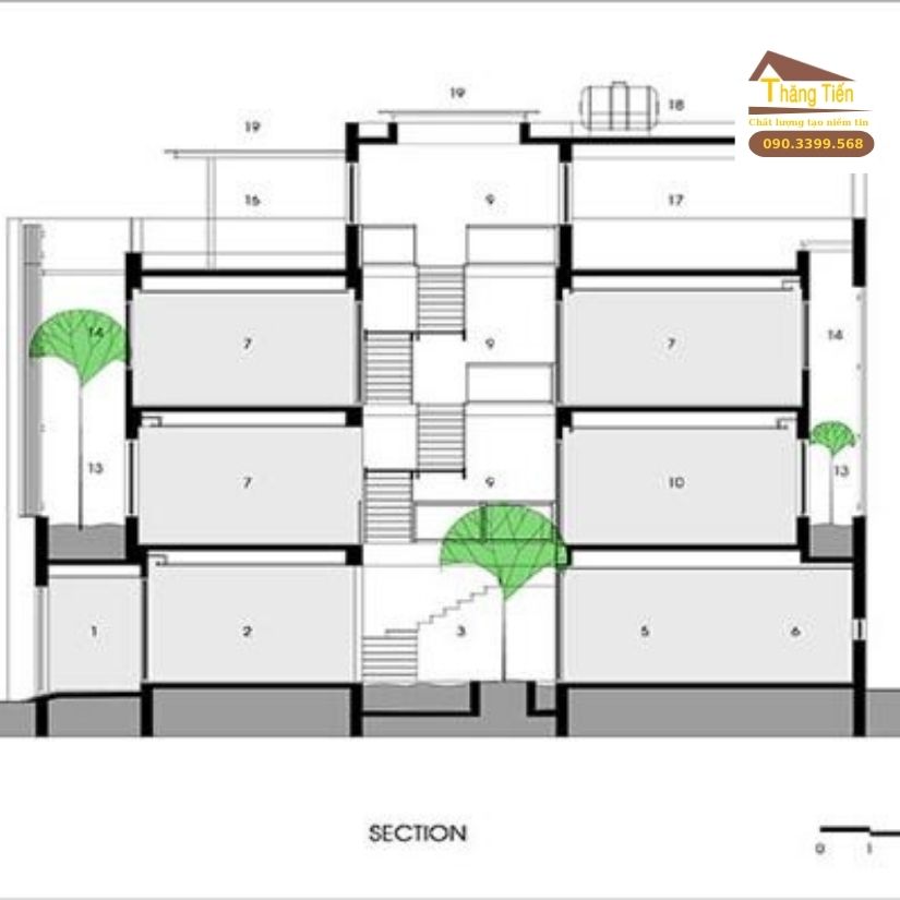
Việc bố trí phòng thờ ngay tại tầng 1 cũng như không gian tiếp khách là một thử thách mà chủ nhà đề ra với kiến trúc sư. Đây là một dạng thiết kế truyền thống khi phòng thờ là trung tâm của căn nhà “2 gian, 3 chái”. Làm sao để phòng thờ hòa hợp với ngôi nhà hiện đại mà vẫn giữ được trang nghiêm của không gian thờ cúng? Một không gian mở với toàn màu trắng của các dạng vật liệu phổ thông đã mang lại hiệu quả tốt, gạch 3 sọc màu trắng, gạch thông gió sơn trắng…
Vườn treo ngay tại mặt tiền mang lại không gian xanh tự nhiên và điều hòa không khí mát cho phòng ngủ 2 cụ cao tuổi. Phần nan gỗ dọc che nắng vừa trang trí mặt tiền, vừa đảm bảo an ninh mà vẫn rất thông thoáng. Khoảng lùi ở mặt trước này rất quan trọng khi ngôi nhà cách được tiếng ồn, khói bụi và có bước đệm xanh bảo vệ.

Chúng tôi dành nhiều thời gian nghiên cứu hơn cho phần lõi giữa nhà. Sân vườn phía trước của nhà cũ không thể mất đi, chúng tôi quyết định cần phải giữ nhưng sẽ chuyển vào giữa nhà, nơi mà Kiến trúc sư muốn giữ chân các thành viên trong gia đình ngồi lại lâu hơn, thư giãn và tận hưởng không gian ngập tràn thiên nhiên. Do đó chúng tôi đưa vào đây mầu xanh của cây Vối với tiếng hót của chim, tiếng nước róc rách với mầu sắc tuyệt đẹp của đàn cá Coi, những vệt nắng tưởng chừng như bất tận từ mái kính xuống đến bể cá. Chưa dừng ở đó, Kiến trúc sư còn mong muốn không gian này còn là nơi gia chủ cảm nhận sự thay đổi của “Nắng” qua từng thời khắc trong ngày, từng mùa trong năm nên đã sử dụng một mái kính lớn với các lam gỗ có thể điều chỉnh góc xoay. Cầu thang bộ chuyển vế trái phải qua các tầng, hành lang cầu nối phương dọc hai khối trước sau, sự đan xen này phá bỏ đơn điệu trong các thiết kế nhà với cầu thang ở giữa. Gỗ tự nhiên, sắt sơn ghi đen, các hệ cửa nhôm đen nổi bật hơn trên nền tường ốp gạch sọc mầu trắng.

Các không gian của khối nhà sau cũng được tận hưởng sự bình yên với mảng cây xanh cuối nhà, tuy không lớn nhưng cũng làm tăng sự gần gũi với thiên nhiên, giảm thiểu áp lực cuộc sống sau mỗi ngày làm việc căng thẳng của gia chủ.
Tất cả được tính toán tỷ mỷ, chi tiết, cân nhắc từng vật liệu sử dụng cho việc kiến tạo nên một không gian đầy cảm xúc để chủ nhà có đủ dũng khí đập bỏ ngôi nhà cũ bao kỷ niệm và cũng để chúng tôi lại có một công trình ưng ý.
Phần lớn các bức tường trong nhà được bao phủ bởi màu xám cá tính của bê tông mang lại một sự thanh lịch cũng như cảm giác mát mẻ cho những ngôi nhà tại những quốc gia có khí hậu nóng. Bên trong nội thất cũng được thiết kế đơn giản không cầu kỳ để tạo một sự thông thoáng cho các không gian. Những vật liệu gỗ từ đồ nội thất cũng mang đến một cảm giác mộc mạc và ấm cúng. Một khoảng không thông tầng nằm kế bên phòng khách đã giúp cho ngôi nhà có cảm giác rộng rãi và sáng sủa hơn, bên cạnh những vườn cây xanh đem đến một sự gần gũi thiên nhiên cũng như bầu không khí thư giãn.

